Агенство недвижимости "Аверс"
Контактный телефон:
098-567-64-99
3 853 017 грн. / 90 000 $
ID 453232401



Фото 0 из 4
Цена:
3 853 017uah
(90 000 $)
Описание:
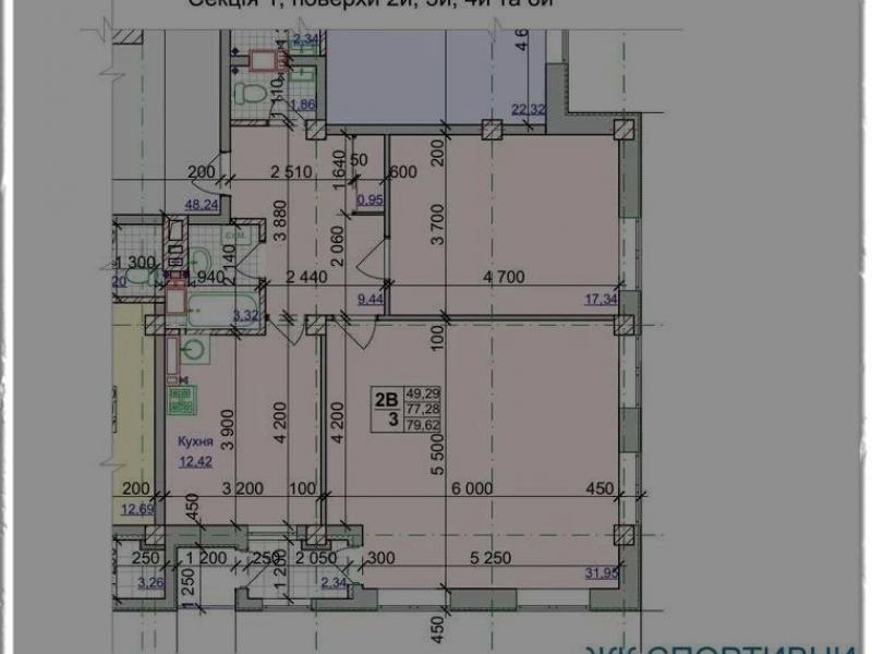
23 ЖК Продам 2к. квартиру, район м. Спортивная, 78.0 кв.м., 2/16, улица Оренбургская ул.. Дата объявления: 2, 2 к, Харьков, Спортивная, ул. Оренбургская. ЖК Спортивный без комиссии Переуступка квартиры 1 очередь, 1 секция,сдача 1 квартал 2022,без комиссии,от владельца Новый современный жилой комплекс (ЖК «Спортивный») располагается в непосредственной близости от центра города в близи ул. Плехановской по ул. Оренбургская в Слободском районе города Харькова и будет отвечать самым современным требованиям к качеству жизни в районе c хорошо развитой инфраструктурой и удобной транспортной развязкой. Новый комплекс порадует горожан абсолютно новым подходом к качеству строительства, от общей концепции застройки до мельчайших деталей. Каждый покупатель квартиры в ЖК «Спортивный» обязательно найдет то, что подходит именно ему! Стены выполнены из газобетона, что делает дом максимально комфортным, а использование утепления по всему фасаду делает вашу квартиру теплой и тихой. Установка в доме современных скоростных и бесшумных лифтов обеспечат жильцам удобство и безопасность. Все квартиры в ЖК «Спортивный» сдаются без внутренней отделки: вводится электрический кабель в квартиру, холодное водоснабжение, горячее водоснабжение, водоотведение, устанавливаются оконные и балконные стеклопакеты европейского качества. Отопление в доме центральное (городские тепловые сети с установкой индивидуальных тепловых счетчиков). Для удобства наших покупателей мы устанавливаем в квартирах счетчики на воду, электроэнергию и индивидуальный счетчик учёта тепловой энергии для каждой квартиры. Установка индивидуального счетчика учёта тепловой энергии позволит покупателю оплачивать именно то количество тепла, которое поступило в его квартиру и существенно сократит расходы на коммунальные платежи. В пешей досягаемости от строящегося жилого комплекса находятся четыре выхода станции метро «Спортивная» и три выхода станции метро «Метростроителей им.Ващенка». На расстоянии не более 100 метров от дома расположены трамвайная остановка (маршруты №5 и №8) и остановка маршрутных автобусов 232э, 244э/т, 251э, 260э/т. В непосредственной близости от дома находится общеобразовательная школа I-III ступеней №151 (около 400 метров) и Харьковская гимназия № 46 имени М.В.Ломоносова (около 600 метров), а также в 10-ти минутах ходьбы от дома расположены два детских сада. В районе расположения комплекса хорошо развита социальная инфраструктура – медицинские центры и поликлиники, библиотеки, почтовые отделения и многое другое. Центральный стадион города Харькова ОСК «Металлист» находится в 300-х метрах от жилого комплекса. Для активного время препровождения на территории ОСК «Металлист» расположены поля для игры в футбол, в подтрибунных помещениях размещены залы для занятий различными видами спорта (борьба, легкая атлетика, тяжелая атлетика), залы для занятия фитнесом. Всем любителям активного образа жизни, которые будут проживать в ЖК «Спортивный», легко найти варианты спортивных занятий по своим интересам и потребностям. Для культурно-творческого развития детей и досуга взрослых в 350 метрах расположен Харьковский муниципальный культурный центр ДК «Металлист», возле которого находится небольшой сквер для отдыха и прогулок. В пешей доступности расположен Конный рынок, гипермаркет «Ашан», отделение ПАТ «Мегабанк», кафе и рестораны, аптеки, салоны красоты, службы быта, администрация Слободского района и Центр предоставления административных услуг Слободского района. 90 000 $ Харьковская область, Харьков, Слободской Вн: a7 - 31.05.2022, Кор(вручную): a7 - 31.05.2022 Вн: a7 - 31.05.2022, Кор(вручную): a3 - 31.05.2022 Вн: a7 - 31.05.2022, Кор(вручную): 50001 - 04.03.2023 Вн: a7 - 31.05.2022, Кор(вручную): 31057 - 04.05.2023 Вн: a7 - 31.05.2022, Кор(вручную): 46007 - 10.05.2023 Вн: a3 - 09.12.2023, Кор(вручную): a3 - 09.12.2023 Вн: a3 - 09.12.2023, Кор(вручную): 01027 - 02.01.2024 Вн: a3 - 09.12.2023, Кор(вручную): 51000 - 21.09.2025 Подробнее об этом объекте на сайте 20.estate
ID 453232401 | 0
Опубликовано: 09.12.2023
На карте:
Похожие объявления
Найдено 4 похожих объявления
Продажа Изолированная 2-комнатная квартира, м. Спортивная
78.8 м2
Продажа Изолированная 2-комнатная квартира, м. Спортивная
77.4 м2
