Агенство недвижимости "Аверс"
Контактный телефон:
098-567-64-99
6 686 561 грн. / 155 000 $
ID 453235502






Фото 0 из 7
Цена:
6 686 561uah
(155 000 $)
Описание:
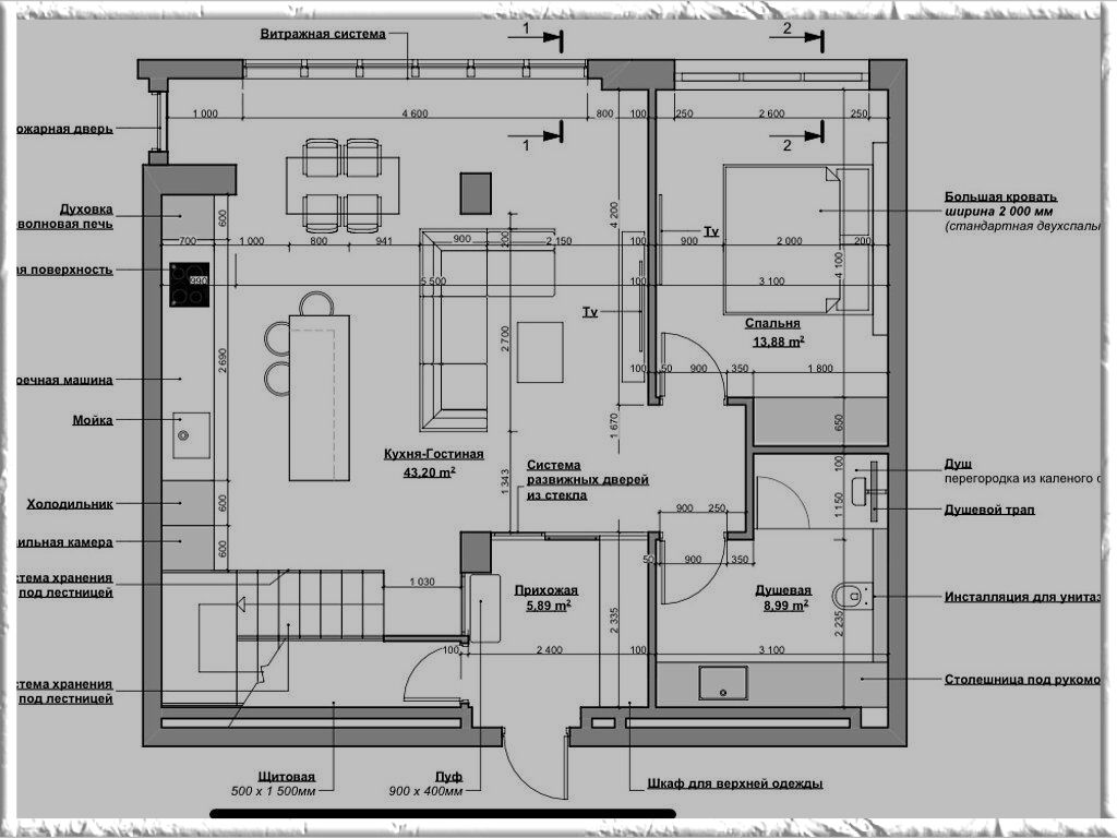
45 ЖК #продажа В продаже своя 2-х уровневая 4-х комнатная квартира расположена в секции 7 ЖК Павловский по ул. Сухумская, 22, центр, г. Научная, Госпром. Квартира находится на 19-20 этаже, общая площадь 145 кв.м. На этапе строительства сделана перепланировка под 4 комнаты для комфортного проживания семьи с двумя детьми: 1-й этаж: кухня-гостиная, спальня, санузел; 2-й этаж: 2 просторные детские спальни, гардеробная и ванная. Квартира в строительном состоянии. Вн: a7 - 14.09.2023, Кор(вручную): a7 - 14.09.2023 Вн: a7 - 14.09.2023, Кор(вручную): s10 - 15.09.2023 Вн: a7 - 14.09.2023, Кор(вручную): s4 - 21.09.2023 Вн: a3 - 09.12.2023, Кор(вручную): a3 - 09.12.2023 Подробнее об этом объекте на сайте 20.estate
ID 453235502 | 0
Опубликовано: 09.12.2023
На карте:
Похожие объявления
Найдено 2 похожих объявления
