Агенство недвижимости "Аверс"

Контактный телефон:

098-567-64-99

1 280 905 грн. / 30 500 $

ID 453240924
Фото 0 из 4
№ Объекта в базе: 453240924
Тип квартиры: Изолированная
Количество комнат: 1
Район: Гагарина
Ориентир: ЖК Левада-2
Улица: Елизаветинская улица
Этаж: 1
Этажность: 16
Общая площадь: 46 м2
Жилая площадь: 20 м2
Площадь кухни: 12 м2
Схема: Раздельные
Материал: Кирпич
Санузел: Раздельный
Телефон: нет
Балкон: 1 балкон застеклен
Состояние: Строительный
Описание:
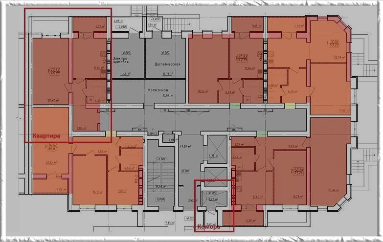
ЖК квартира за адресою Харків, Заливна вул, 8а. Центр міста. Поряд метро(5 хвили), ТРЦ Класс, Набережна. Квартира на першому поверсі з вікнами не на сонячну сторону. Великий передпокій. Оформлено лічильник тепла, є можливість економити на опаленні поки виконуються ремонтні роботи. Додатково є можливість придбання, нежитлового приміщення 5 м. кв. на першому поверсі з виходом на вулицю в цьому ж підїзді. Вже оформлене. Будинок Введено в експлуатацію-Українська цегла, в квартирі 1 кімната. Планування кімнат Роздільне. Немає газу. Гаряча вода-централізована. Опалення центральне. В квартирі є Лічильники. Загальний стан квартири-Від будівельників(з обробкою). Терміново Планування не змінювалося. Від забудовника, як на фото. ЖК Левада-2. Житловий комплекс продовжує будуватись. Метро Пр. Гагарина. ТРЦ Класс. Всі види трансопрту. Квартира в стані від забудовника. Харків, Заливна вул, 8а, Основянський р-н. 1 кімната, 462012 м2, поверх 1 з 16. , 1 кімната, 462012 м2, поверх 1 з 16, Українська цегла, Роздільне, Від будівельників(з обробкою). Єгор.(Власник). Цена 31 500 Тел Продаж квартир в Харківській області(вторинний ринок житла)-сторінка 2 Вн: a1 - 15.12.2023, Кор(вручную): a1 - 15.12.2023 Вн: a1 - 15.12.2023, Кор(вручную): s10 - 15.12.2023 Вн: a1 - 15.12.2023, Кор(вручную): 15008 - 05.01.2024 Вн: a1 - 15.12.2023, Кор(вручную): 15009 - 05.08.2024 Вн: a1 - 15.12.2023, Кор(вручную): 46004 - 28.05.2025 Подробнее об этом объекте на сайте 20.estate

ID 453240924 | 4

Опубликовано: 15.12.2023

На карте:

Похожие объявления

Найдено 15 похожих объявления