Агенство недвижимости "Аверс"
Контактный телефон:
098-567-64-99
1 412 773 грн. / 33 000 $
ID 453253514
Фото 0 из 1
Цена:
1 412 773uah
(33 000 $)
Описание:
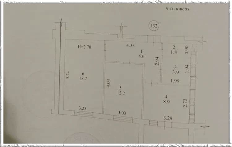
ЖК Дата объявления: 2, 2 к, Харьков, ХТЗ, ул. Мира. Квартира в новобудові Продам квартиру в новобудові ЖК Мира-2. Будинок здано в експлуатацію та можна робити ремонт знаходиться на 9-му поверсі з можливістю викупити тех поверх та зробити дворівневу квартиру. 35 500 $ Договірна Харківська область, Харків, Індустріальний Анна Вн: a1 - 06.03.2024, Кор(вручную): a1 - 06.03.2024 Вн: a1 - 06.03.2024, Кор(вручную): s10 - 06.03.2024 Вн: a1 - 06.03.2024, Кор(вручную): 01025 - 12.08.2024 Вн: a1 - 06.03.2024, Кор(вручную): 15015 - 02.09.2025 Вн: a1 - 06.03.2024, Кор(вручную): s23 - 19.12.2025 Вн: a1 - 06.03.2024, Кор(вручную): 15002 - 14.01.2026 Подробнее об этом объекте на сайте 20.estate
ID 453253514 | 4
Опубликовано: 06.03.2024
На карте:
Похожие объявления
Найдено 19 похожих объявления
