Агенство недвижимости "Аверс"

Контактный телефон:

098-567-64-99

1 155 477 грн. / 26 990 $

ID 453281702
Фото 0 из 5
№ Объекта в базе: 453281702
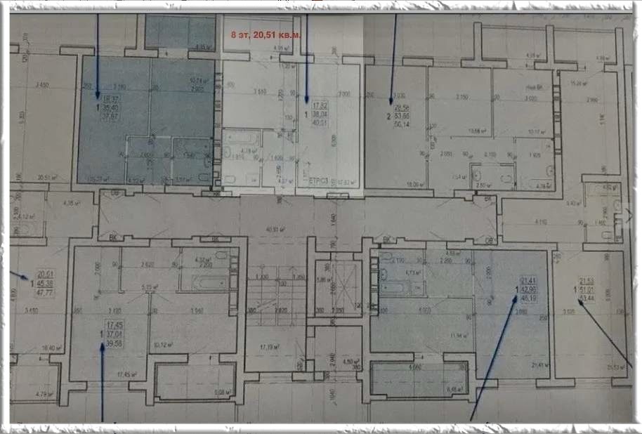
Тип квартиры: Изолированная
Количество комнат: 1
Район: Салтовка
Ориентир: ЖК
Улица: ЖК Птичка Шевченковский пер.
Этаж: 8
Этажность: 9
Общая площадь: 40 м2
Жилая площадь: не указано м2
Площадь кухни: не указано м2
Схема: Раздельные
Материал: Кирпич
Санузел: Совмещенный
Телефон: нет
Балкон: 1 балкон застеклен
Состояние: Без ремонта
Описание:
ЖК Дата объявления: 2, 1 к, Харьков, Салтовка, пер. Шевченковский 48. ЖК ПИИЧКА. ЖС-1. Пер. Шевченковский 48, 19Б БЕЗ КОМИССИИ ЖК ПИИЧКА. ЖС-1. Пер. Шевченковский 48, 19Б БЕЗ КОМИССИИ Квартира на 8 этаже в девяти этажном доме Дом кирпичный с утеплением, квартира не угловая Дом находится в живописном месте на берегу реки, Есть детские площадки и места для парковки 10 мин До МЕТРО АКАДЕМИКА ПАВЛОВА 15 мин до ДАФИ / КАРАВАН БЕЗ КОМИССИЙ 0% 26 990 $ Договірна Харківська область, Харків, Немишлянський Марина Вн: a1 - 19.09.2024, Кор(вручную): a1 - 19.09.2024 Вн: a1 - 19.09.2024, Кор(вручную): s10 - 19.09.2024 Вн: a1 - 19.09.2024, Кор(вручную): s10 - 19.09.2024 Подробнее об этом объекте на сайте 20.estate

ID 453281702 | 1

Опубликовано: 19.09.2024

На карте:

Похожие объявления

Найдено 235 похожих объявления