Агенство недвижимости "Аверс"
Контактный телефон:
098-567-64-99
2 027 538 грн. / 47 000 $
ID 453298433



Фото 0 из 4
Цена:
2 027 538uah
(47 000 $)
Описание:
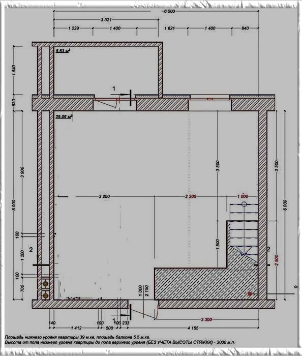
Нет связи с абонентом. ЖК Дата объявления: 2, обновлено: 2, 3 к, Харьков, Алексеевка, пр. Победы 86. Продаж двоповерхової квартири 82 м2 ЖК «Победы 2» Продаж 2-х рівневої квартири ЖК «Победы 2» в будівельному стані з видом на ліс. 9 поверх 41 м2 та 10 технічний поверх 41 м2. Виконано офіційний проект отвору ЖС-1 у перекритті між поверхами. На етапі будівництва на технічному поверсі закладені перемички вікон під плиту перекриття, що надає можливість зробити повноцінні панорамні вікна та відкритий балкон на 10 поверсі. У квартиру заведено труби опалення більшого діаметру для якісної подачі центрального опалення на 10 поверх. Можливість зробити санвузол на кожному рівні. Перегородки не робились, цегла складна. Можливість робити будь-яке планування, залежно від ваших уподобань та потреб. 47 000 $ Харківська область, Харків, Шевченківський Олексій Вн: a1 - 17.04.2025, Кор(вручную): a1 - 17.04.2025 Вн: a1 - 17.04.2025, Кор(вручную): s10 - 17.04.2025 Вн: a1 - 17.04.2025, Кор(вручную): s10 - 24.04.2025 Вн: a1 - 17.04.2025, Кор(вручную): 46001 - 03.09.2025 Вн: a1 - 17.04.2025, Кор(вручную): s23 - 21.11.2025 Подробнее об этом объекте на сайте 20.estate
ID 453298433 | 0
Опубликовано: 17.04.2025
На карте:
Похожие объявления
Найдено 27 похожих объявления
