Агенство недвижимости "Аверс"
Контактный телефон:
098-567-64-99
1 369 962 грн. / 32 000 $
ID 453316235



Фото 0 из 4
Цена:
1 369 962uah
(32 000 $)
Описание:
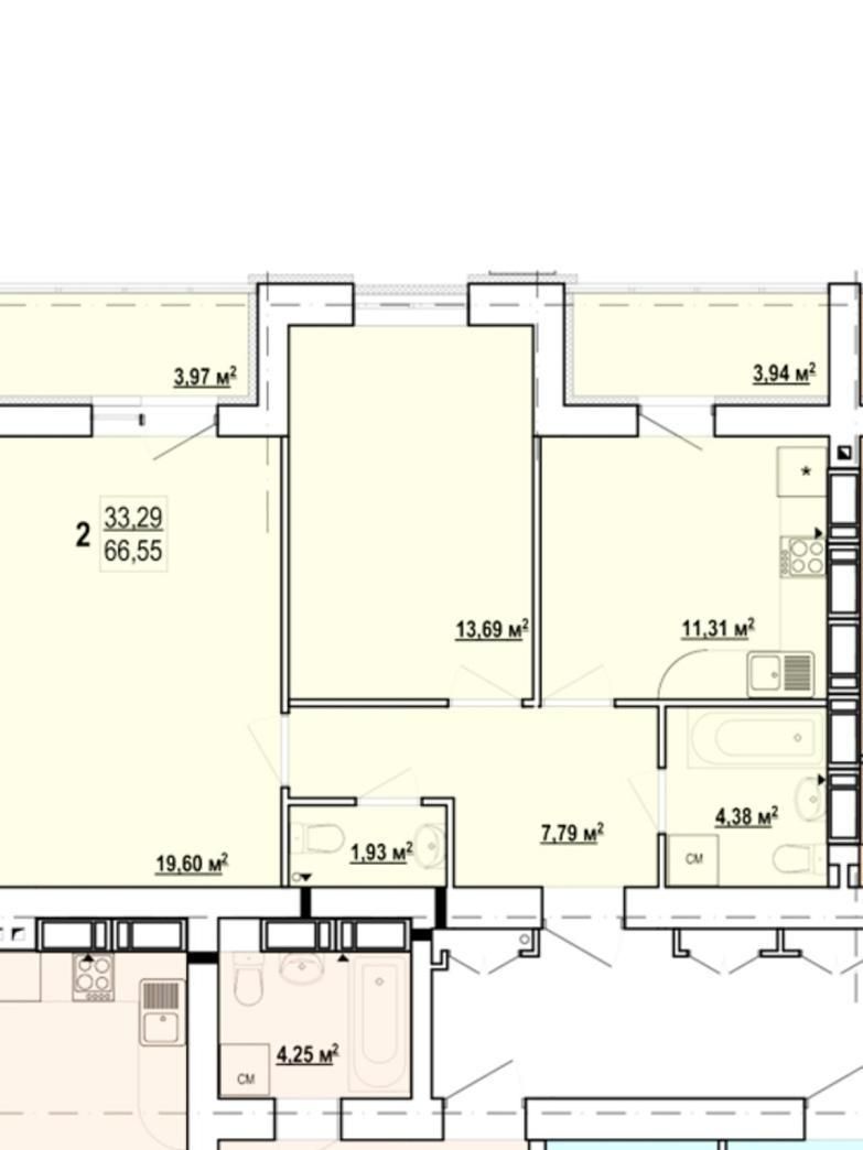
(НОМЕР PMC)-Продажа 2к квартиры 66. 9 кв. м на ул. Борткевича 15. ID 5. Владелец! XXXXXXXXXX. Продам 2-комнатную квартиру. Надежный застройщик Жилстрой-1. Дом по адресу ул. Борткевича 8в. 4 этаж 16-ти этажного дома с двумя лифтами. Общая площадь квартиры 66. 55 м2 находится на четвертом этаже. Формат две спальни, кухня, два санузла, две лоджии. В квартире установлены металлические двери, металлопластиковые окна, горизонтальная разводка отопления с установкой радиаторов, счетчик электроэнергии. В комплексе предусмотрено благоустройство придомовой территории, оборудованы детские площадки, комфортные зоны отдыха и занятий спортом, многоуровневый паркинг, а также выделенная зона для гостей на придомовой территории. Продажа от владельца по переуступке в офисе Жилстрой 1. Сейчас проходит оформление права собственности. ID(к30!72, 1565). Общая площадь 66. 9 кв. м. жилая 33. 3 кв. м. кухня 10. 9 кв. м, 2 комнаты, 4 этаж из 16, 2 комнаты 4 этаж из 16, Общая площадь 66. 9 кв. м. жилая 33. 3 кв. м. кухня 10. 9 кв. м, Построен в 2023, Возможна переуступка, Предложение от собственника, Новостройка. Андрей. Цена 32 000 . Адрес Борткевича улица, 15, район Киевский, Харьков, метро Салтовская. Тел , Рубрика Харьковская область, Продажа 2 комнатной квартиры. Новостройки. от собственника. Борткевича улица, 15 Киевский Харьков ЖК Гидропарк Салтовская Вн: a1 - 12.11.2025, Кор(вручную): a1 - 12.11.2025 Вн: a1 - 12.11.2025, Кор(вручную): s10 - 12.11.2025 Подробнее об этом объекте на сайте 20.estate
ID 453316235 | 2
Опубликовано: 12.11.2025
На карте:
Похожие объявления
Найдено 21 похожих объявления
