Агенство недвижимости "Аверс"
Контактный телефон:
098-567-64-99
856 226 грн. / 20 000 $
ID 548266052









Фото 0 из 10
Цена:
856 226uah
(20 000 $)
Описание:
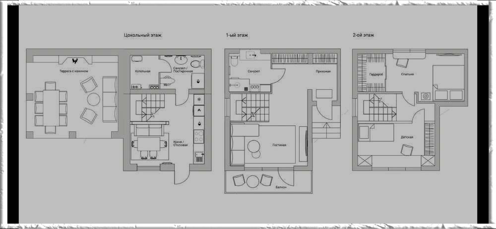
Дата объявления: 2, дом, Рай-Оленовка. Продам будинок з терасою Рай-Оленівка Продам будинок площею 92 кв.м. з терасою 23 кв.м. (загальна 115 кв.м) у садовому товаристві «Сахарник». Документи є на землю та будинок. Земельна ділянка 8,3 соток виходить у ліс. Будинок без внутрішніх робіт. У будинку: - заведені комунікації (електроенергія, інтернет, каналізація, вода (свердловина 38 метрів)) - вікна 6 камерні 70 мм у чорному кольорі (двокамерні склопакети) - криша утеплена 400 мм мінеральною ватою, покриття бітумна черепиця - утеплення цокольного поверху полістирол 200 мм. Садове товариство газифіковано (газ проходить по вулиці біля будинку). 30 000 $ Харківська область, Рай-Оленівка Михаил Вн: a1 - 04.03.2024, Кор(вручную): a1 - 04.03.2024 Вн: a1 - 04.03.2024, Кор(вручную): 54000 - 22.07.2024 Вн: a1 - 04.03.2024, Кор(вручную): s10 - 25.11.2025 Подробнее об этом объекте на сайте 20.estate
ID 548266052 | 2
Опубликовано: 04.03.2024
На карте:
Похожие объявления
Найдено 702 похожих объявления
