Агенство недвижимости "Аверс"
Контактный телефон:
098-567-64-99
2 372 651 грн. / 55 000 $
ID 548269236






Фото 0 из 7
Цена:
2 372 651uah
(55 000 $)
Описание:
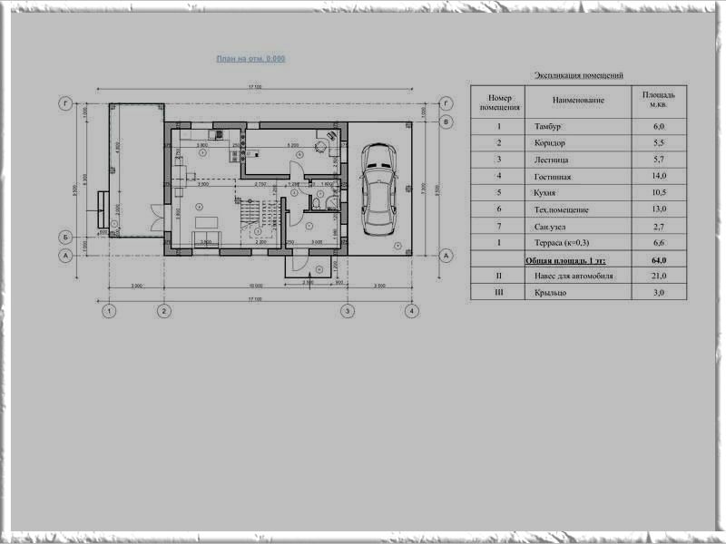
Дата объявления: 2, обновлено: 2, дом, Харьков, Старая Салтовка, ул. Перекрестная 15. Продажа 2 этажного дома с участком на 5 соток, 119 кв. м, 5 комнат, на ул. Перекрестная 15 Продам ниже себестоимости недостроенный дом по адресу г.Харьков, ул.Перекрестная 15. Жилая площать 119кв.м., подвал-бункер на пол дома, кровля из металлочерепицы. Участок угловой 5 соток, приватизирован. Широченный заезд к участку с двух сторон. На участке заведен газ, електричество, городская вода и городская канализация(никаких септиков). Тихая улица, отличные соседи. Есть много фото-видео материала на всех этапах строительства(дам ссылку по запросу) Звонить в будние дни после 19:00. XXX-XXXXXXX Собственник. 55000 $ Ольга ММ Вн: a1 - 04.07.2024, Кор(вручную): a1 - 04.07.2024 Подробнее об этом объекте на сайте 20.estate
ID 548269236 | 9
Опубликовано: 04.07.2024
На карте:
Похожие объявления
Найдено 28 похожих объявления
