Агенство недвижимости "Аверс"
Контактный телефон:
098-567-64-99
2 804 042 грн. / 65 000 $
ID 548271437









Фото 0 из 10
Цена:
2 804 042uah
(65 000 $)
Описание:
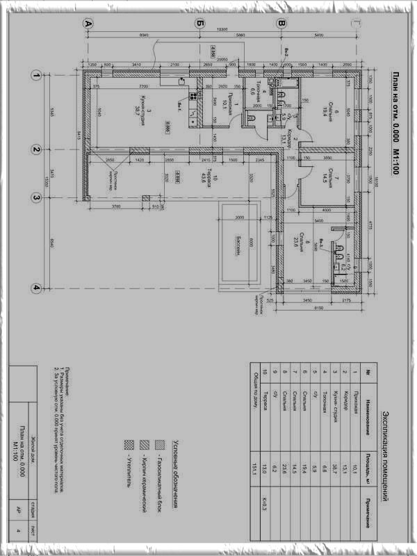
Дата объявления: 2, дом, Малая Даниловка. Продажа 1 этажного дома с участком на 6.7 сотки, 150 кв. м, 4 комнаты, на просп. Лозовеньковский Продается свой недостроенный дом в клубном поселке River Park с уникальной возможностью завершить строительство по своему вкусу. Начало работ октябрь 2021 года, последний этап строительства февраль 2022 года. На текущем этапе выполнено следующее: проведены все коммуникации по участку (электричество, интернет, скважина, система водоснабжения), обустроены колодцы для оборудования бассейна, возведены фундамент и стены, а также разведены коммуникации по дому для отопления, водоснабжения и канализации. На складе хранятся уже готовые окна, на участке кирпич и блоки для завершения возведения стен и перегородок. Все работы выполнены с высоким качеством, так как лично по профилю строитель. Общие вложения: - Участок: 33 000 $ - Материалы и работы: 75 000 $ Этот дом отличный фундамент для быстрого завершения с очень хорошим дисконтом. +XXXXXXXXXXXX +XXXXXXXXXXXX (watsapp) 65000 $ Роман Вн: a1 - 17.09.2024, Кор(вручную): a1 - 17.09.2024 Подробнее об этом объекте на сайте 20.estate
ID 548271437 | 0
Опубликовано: 17.09.2024
На карте:
Похожие объявления
Найдено 180 похожих объявления
