Агенство недвижимости "Аверс"
Контактный телефон:
098-567-64-99
5 565 469 грн. / 130 000 $
ID 548289188


Фото 0 из 3
Цена:
5 565 469uah
(130 000 $)
Описание:
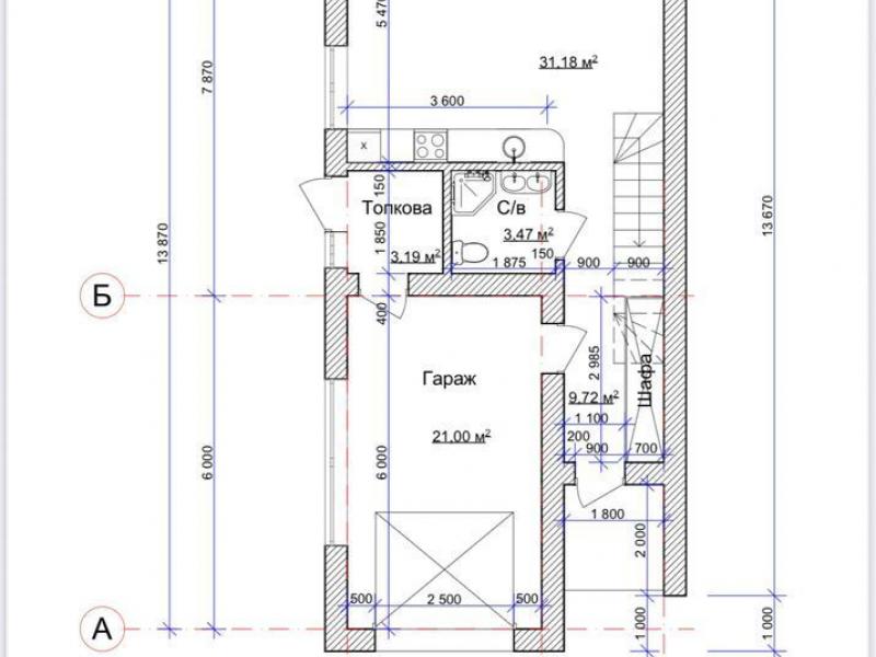
(НОМЕР PMC)-Продам дом ХАРЬКОВ Дуплекс у закритому коттеджному містечку. Цена 130 000 . Количество комнат 3 комн. Общая площадь 140 кв. м. Этажность 2. Площадь участка 3 соток. Продам сучасний будинок у Харкові Сучасний дуплекс у закритому котеджному містечку RAY ELENOVKA Лише 15 хвилин до центру міста! Адреса Харківська обл, Харківський р-н, с. Рай-Оленівка, вул Рай Оленівська 1а Просторий двоповерховий дім із загальною площею 141, 69 м(1-й поверх 68, 56 м, 2-й 73, 13 м)створений для комфортного життя в оточенні природи. Закрите містечко з відеоспостереженням, контролем доступу та власною мінеральною водою, підведеною до кожного будинку. План першого поверху(68, 56 м). Гараж 21 м. Топкова 3, 19 м. Санвузол 3, 47 м. Шафагардероб 9, 72 м. Простора гостинна з кухнею 31, 18 м План другого поверху(73, 13 м). Три житлові кімнати 17, 55 м11, 05 м16, 24 м. Два санвузли 6, 21 м6, 75 м. Хол 9, 37 м. Балкон Переваги. Закрите котеджне містечко з відеонаглядом і пропускним контролем. Мінеральна вода підведена до кожного будинку. Просторий гараж. 3 спальні велика кухня-вітальня. Балкон і можливість облаштування тераси. Усього 15 хвилин до центру міста Загальна площа 141, 69 м Гараж є Кімнат 3 Санвузлів 3 Мінеральна вода Закрите містечко з охороною Більш детальна інформація за номером-3881 Чекаємо на вас. Дома, Продажа домов, Продажа домов-Харьковская область, Продажа домов-Харьков, Продажа домов-Холодногорский Адрес Харьков, Холодногорский, Харьковская область. КМ Ray-Elenovka. Объявление от Бизнес. Продажа от застройщика, Без комиссии, Готов сотрудничать с риэлторами, Расстояние до ближайшего города до 5 км, Этажность 2, Общая площадь 140 кв. м, Количество комнат 3, Площадь участка 3 соток, Тип дома Дом, Тип стен Другое, Тип кровли Другое, Санузел 2 и более, Отопление Тепловой насос, Ремонт После строителей, Меблирование Нет, Коммуникации Асфальтированная дорога, Центральная канализация, Электричество, Вывоз отходов, Скважина. ID(к90!31, 98623). procpars. Тел , Вн: a1 - 12.11.2025, Кор(вручную): a1 - 12.11.2025 Вн: a1 - 12.11.2025, Кор(вручную): s10 - 12.11.2025 Подробнее об этом объекте на сайте 20.estate
ID 548289188 | 4
Опубликовано: 12.11.2025
На карте:
Похожие объявления
Найдено 702 похожих объявления
