Агенство недвижимости "Аверс"
Контактный телефон:
098-567-64-99
620 764 грн. / 14 500 $
ID 453317300


Фото 0 из 3
Цена:
620 764uah
(14 500 $)
Описание:
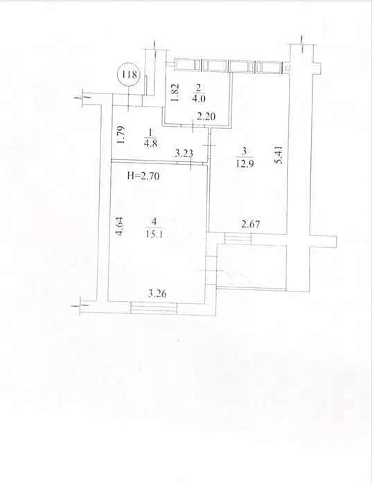
ЖК Дата объявления: 2, 1 к, Харьков, Киевский, ул. Борткевича 7. 1-кімнатна квартира ЖК Гідропарк з документами від власника Продаж 1 кімнатної квартири по вул. Борткевича у комплексі ЖК Гідропарк. Будинок 7, розташована на 1 поверсі 9 поверхового будинку. Планування видно на фото. Перегляд за домовленістю Площа квартири 39.6 м.кв. Площа кімнати 17.90 м.кв. У квартирі будівельний стан. Встановлено металеві двері, є батареї, підведено світло та вода, металопластикові вікна. У районі кілометра дуже гарна інфраструктура. Є можливість встановлення лічильника на воду та на опалення – це великий плюс взимку. Будинок зданий, в експлуатацію. 14 500 $ Сергей вулиця Борткевича 7 Харків, Київський Вн: a1 - 01.12.2025, Кор(вручную): a1 - 01.12.2025 Вн: a1 - 01.12.2025, Кор(вручную): s10 - 01.12.2025 Подробнее об этом объекте на сайте 20.estate
ID 453317300 | 3
Опубликовано: 01.12.2025
На карте:
Похожие объявления
Найдено 49 похожих объявления
